TEATRO D'OPERA A BAKU
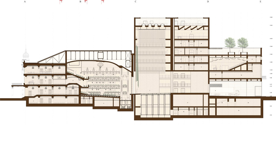
Per me l'occasione per la conoscenza di una cultura (non solo dell'abitare) antica e importante, per l'approfondimento del tema tipologico teatrale, per riflettare sul tema sfondo - figura alla scala urbana e alla scala dell'edificio. I lavori proposti nel progetto di ristrutturazione del Teatro dell'Opera e Balletto di Baku sono stati divisi in: puro restauro, ristrutturazione e costruzione ex novo. Nelle parti da restaurare sono state rispettate la distribuzione e le relative attività, utilizzando i materiali e le tecniche di restauro originari, restituendo all'intero corpo del Foyer e alla Sala della Platea quel fascino legato alla storia del teatro e alle rappresentazioni operistiche. Le aree di nuova progettazione, nel rispetto delle antiche murature, delle strutture e degli elementi di valore artistico e architettonico, sono state studiate nell'intento di ampliare le funzioni del Teatro, dal punto di vista delle rappresentazioni e dei servizi complementari e di supporto. Schematicamente la struttura del teatro può essere scomposta in cinque parti: facciata principale con foyer e cavea, da restaurare; torre scenica e servizi e bookshop/ristorante da costruire ex novo.















